Architecture Tech, Revit 2
EducationHere’s a few shots of my final project for a Revit 2 class at George Brown College. The task was to build up a Manor House over two semesters and show:
- Rendered scenes of the house
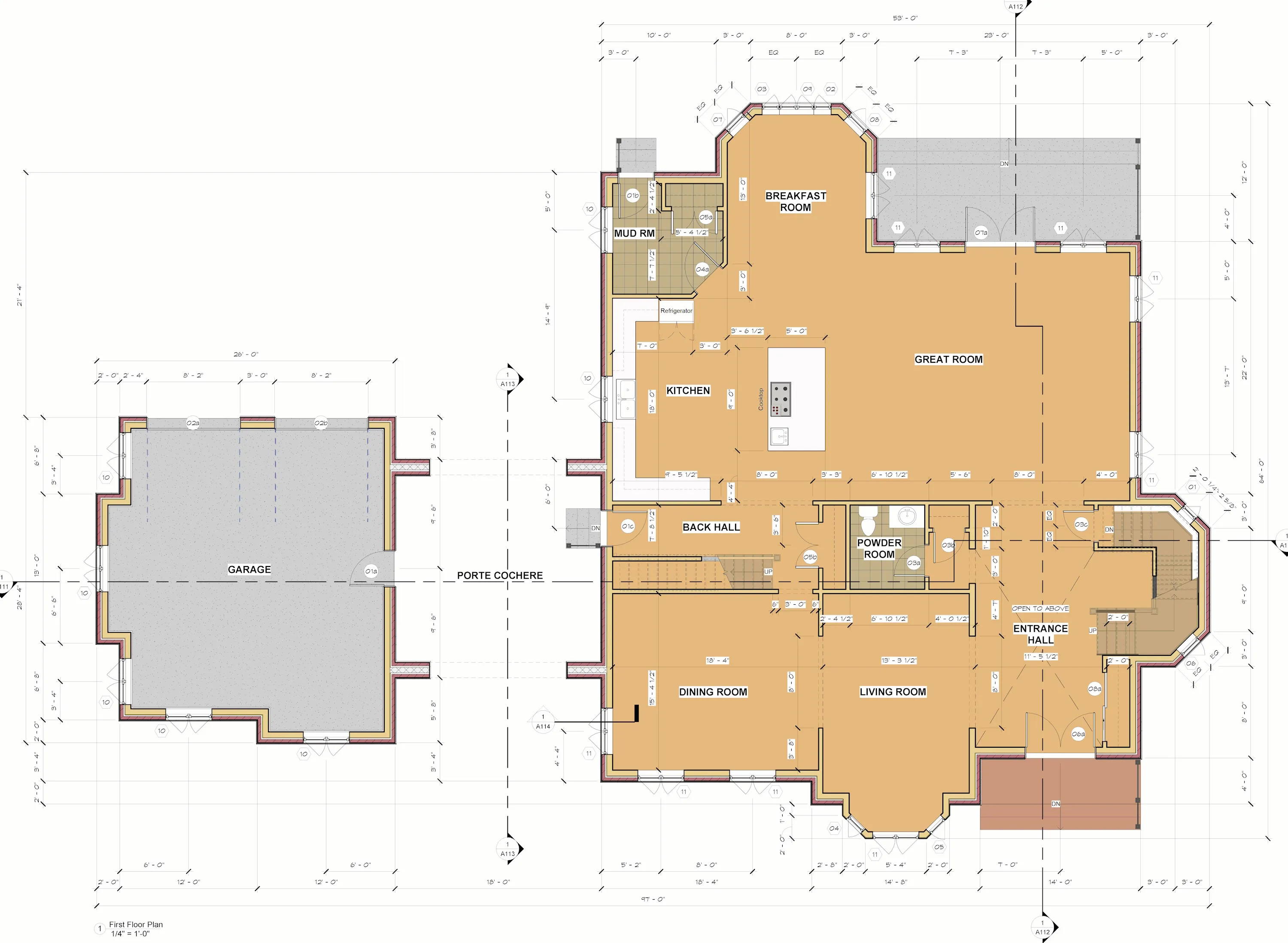
- Site plan and floor plans, roof plans
- Elevations
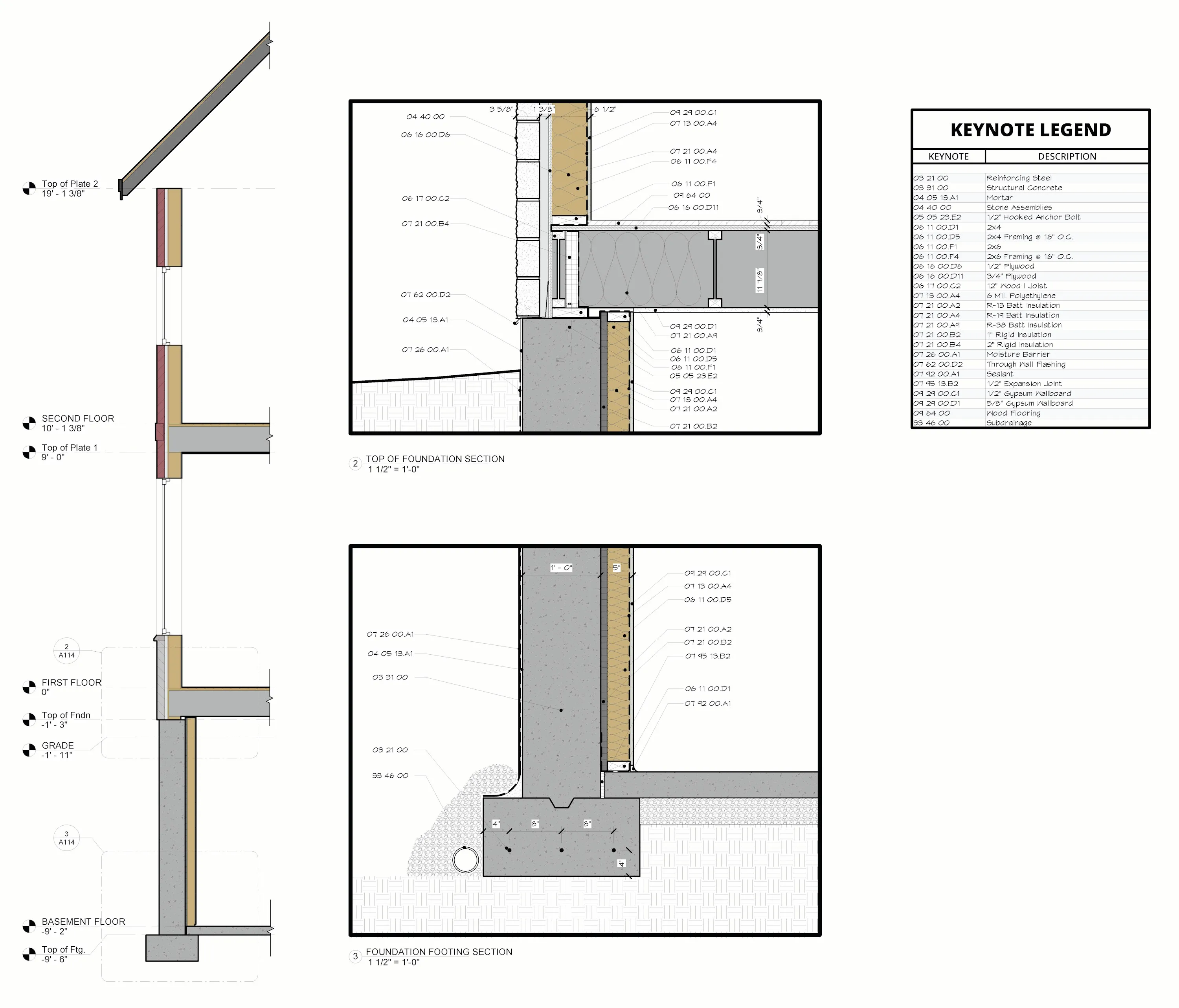
- Sections
Renders, Elevation


Plans
/
/
/
/
Sections


